Home Byty - prodej, pronájem Byty na prodej

Prodej, Byty 1+kk, 35 m2 -

6. 1. 2023 - 00:33
2 050 000 Kč
Inzerát partnera

Popis

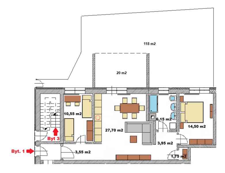
Nízkonákladový investiční apartmán v Krkonoších v Prostředních Starých Bukách o dispozici 1+kk 38,1 m2.
Přírodou obklopené apartmány s vlastním parkovacím stáním, prostornou komorou ke každému bytu, společnou kolárnou a venkovním posezením.
V objektu se nachází 11 bytových jednotek o dispozici 1+kk a 2+kk a to od 33 m2 do 96 m2.
Tento projekt firmy HAS STAVBY je nízkonákladový a velmi úsporný pro budoucí majitelé, a to díky:
- primární zdroj vytápění tepelným čerpadlem vzduch-voda napojený na topnou soustavu. Topná voda bude rozváděna do otopných těles a do topných žebříků umístěných v koupelnách
- voda z vlastní vrtané studně 30m
- čistička odpadních vod
- okna trojskla
- celková energetická náročnost B
Dokončení a zkolaudován bude již do konce roku 2022.
První zmínka o obci Staré Buky je již z roku 1355. Kde byl do 16. století skutečným vlastníkem český král, kterému patřil hrad Trutnov. Čas běžel, vlastníci se měnili a díky dědickému dělení majetku byly Staré Buky rozděleny na 3 samostatné vesnice. Dolní, prostřední a Horní Staré Buky.
Krom krásné přírody a klidu tu naleznete spoustu sportovního vyžití. V létě – cyklotrasy začínající rovnou od domu, ke koupání Dolcké rybníky, které jsou jen 1,5 km, Dvůr Králové a jeho krásná zoologická zahrada 16 km, prohlídka měst Trutnov 8 a Hradec Králové 47 km.
V zimě – běžecké trasy začínající v Pilníkově vzdáleném 3 km, Černá Hora v Janských Lázních 15 km, Mladé Buky 11 km a Pec pod Sněžkou 26 km.
Tyto nemovitosti jsou vhodné jak na investici, tak ke klidnému bydlení a pokud Vás to zaujalo, domluvte si se mnou prohlídku, ráda Vás provedu osobně a poradím i s financováním.

Parametry

Podlaží, v němž je byt
2.
Energetická třída (štítek)
B
Podlahová plocha bytu (m²)
35
Dispozice bytu
1+kk

Základní údaje

Oblast inzerce
Druh inzerátu
soukromá inzerce
Číslo inzerátu
4096739433437463932
2 050 000 Kč
Inzerát partnera

Prodej, Byty 1+kk, 35 m2 -

Zavřít Zavřít
Prodávající
Broker Consulting, a.s.
Pošlete uživateli zprávu
0 / 1000

Nahlásit inzerát

Zavřít Zavřít
0 / 2000
Děkujeme za zpětnou vazbu! Inzerát byl nahlášen!