Home Byty - prodej, pronájem Byty na prodej

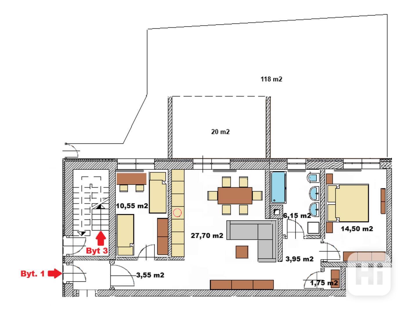
Prodej bytu podle plánu, 3+kk, viz plán. Chlum u Hlinska.

Chlum
22. 4. 2026 - 12:01
3 900 000 Kč
Prodávající

Popis

Prodej bytu podle plánu, 3+kk, viz plán.
Byt se nachází v klidné a tiché lokalitě.

Neprodáváme jen tak někomu. Hledáme rodinu s referencemi, tichou, zdvořilou, spolehlivou a milující přírodu a květiny.
Bydlíme také ve stejném domě. Nejsme Češi, jsme z Jižního Tyrolska.
Odhadovaná tržní cena: 4 200 000 Kč.

Prodejní cena: 3 900 000 Kč.
Cena dohodou.
Je cena stále příliš vysoká? Přijďte si to probrat.

Byt v rekonstrukci.
Předpokládané předání v roce 2026.
Pro více informací a podrobnosti nás prosím kontaktujte pouze po předchozí domluvě.

252 m2 komerční prostor:
(+ část společného pozemku)
- Byt č. 1, přízemí - 70 m2
- Terasa - 20 m2
- Zahrada - 118 m2
- Sklep - 9 m2
- 2 parkovací místa - 35 m2

Vytápění s tepelným čerpadlem, elektřinou a vodou z hlavního přívodu - vše nezávislé.
Komín o průměru 23 cm uprostřed obývacího pokoje s možností připojení kamen na dřevo.
Bezpečnostní vstupní dveře italské výroby.
Podlahy, dveře, okna a koupelnové doplňky – vše nové.
Byt je nezařízený.

V případě skutečného zájmu mě prosím kontaktujte. Žádné ztráty času. Děkuji.

Informace neposkytujeme telefonicky.
Schůzku si prosím domluvte výhradně e-mailem nebo přes WhatsApp.

WhatsApp: 774-216-455
tomasi.sro@gmail.com
La Bottega – Potravinové speciality z Südtirol - Alto Adige

Parametry

Povaha inzerátu
prodej bytu
Dispozice bytu
3+kk
Druh vlastnictví
osobní
Materiál stavby
cihla
Možnost parkování
venkovní parkoviště

balkón, terasa, lodžie nebo předzahrádka
sklep nebo podobný vlastní prostor

Základní údaje

Oblast inzerce
Chlum
Druh inzerátu
soukromá inzerce
Číslo inzerátu
7861815981811548563
3 900 000 Kč
Prodávající

Prodej bytu podle plánu, 3+kk, viz plán. Chlum u Hlinska.

Zavřít Zavřít
Prodávající
Olena
Pošlete uživateli zprávu
0 / 1000

Nahlásit inzerát

Zavřít Zavřít
0 / 2000
Děkujeme za zpětnou vazbu! Inzerát byl nahlášen!