Home Byty - prodej, pronájem Pronájem bytů

Pronájem byt 1+kk, Brno (od 01.03.2026)

Brno-střed
2. 1. 2026 - 15:23
17 500 Kč
Prodávající

Popis

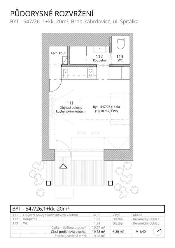
Nabízíme k dlouhodobému pronájmu byt 1+kk o výměře 20 m² v městské části Brno – Zábrdovice, na ulici Špitálka. Součástí bytu je terasa o velikosti 4 m², orientovaná do klidného vnitrobloku. Byt se nachází v zrekonstruovaném bytovém domě. Samotná jednotka prošla kompletní rekonstrukcí v ½ roku 2025.
Vybavení bytu:
K dispozici je nová kuchyňská linka včetně:
• vestavěné myčky na nádobí,
• vestavěné lednice,
• vestavné digestoře,
• kombinované pečicí trouby a mikrovlnky.
Součástí bytu je také technický kout, který je elegantně ukrytý za vestavnými dveřmi který je vybaven:
• elektrický rozvaděč
• bojler na ohřev vody
• příprava na pračku
• datová zásuvka
• vodoměrná sestava
Koupelna je vybavena:
• odděleným WC s odtahem
• sprchovým koutem s odtahem
• umyvadlem s koupelnovou skříňkou
• zrcadlem
• žebříkovým radiátorem

V bytě se dále nachází dvojice stropních svítidel s dálkovým ovládáním, která umožňují nastavit intenzitu i barvu světla. Topení lze ovládat přes ovladač nebo mobilní aplikaci. Byt je vybaven i domovním audio telefonem a požárním hlásičem. Menší, ale prakticky řešený byt nabízí pohodlné bydlení s minimálními nároky na údržbu. Skvělá volba pro jednotlivce, kteří ocení jednoduchost a funkčnost. Při vhodném vybavení lze prostor využít velmi efektivně.

Poznámka: Na přelomu května a června je plánováno dokončení úprav vnitrobloku, včetně výsadby okrasných rostlin a keřů, které přispějí k většímu soukromí a estetičtějšímu prostředí celého prostoru.
Náklady a podmínky pronájmu:
• Nájemné: 14 500 Kč / měsíc
• Zálohy na služby: cca 3 000 Kč (pro 2 osoby, Voda, Elektřina, Internet, Ostatní)
• Nájemné + Zálohy 14 500 + 3000 = 17 500 Kč
• Vratná jistota (kauce): 14 500 Kč
• Bez provize RK – přímá nabídka
• K dispozici: od 1. 3. 2026
• Vhodné pro jednotlivce či pár
• Preferujeme dlouhodobý pronájem
• Domácí zvířata jsou možná při zvýšení vratné kauce.
Kontakt: mikel.jakub@email.cz/ tel: +420 736 651 103

Parametry

Povaha inzerátu
pronájem bytu
Dispozice bytu
1+kk
Materiál stavby
cihla
Možnost parkování
venkovní parkoviště
Podlahová plocha bytu (m²)
20

Základní údaje

Oblast inzerce
Brno-střed
Druh inzerátu
soukromá inzerce
Číslo inzerátu
73820031037060196763
17 500 Kč
Prodávající

Pronájem byt 1+kk, Brno (od 01.03.2026)

Zavřít Zavřít
Prodávající
Ing.
Pošlete uživateli zprávu
0 / 1000

Nahlásit inzerát

Zavřít Zavřít
0 / 2000
Děkujeme za zpětnou vazbu! Inzerát byl nahlášen!