Home Byty - prodej, pronájem Byty na prodej

PRODEJ BYTU 2+1 76 m² ul.VÝPRAVNÍ, BRNO

Brno-jih
25. 10. 2025 - 00:17
7 600 000 Kč
Prodávající

Popis

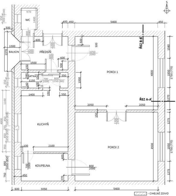
Jsem majitel, ale mám RK zastoupení. Nabízím k prodeji prostorný, slunný byt o dispozici 2+1 v OV, 2. patro, třípodlažní cihl.dům bez výtahu. Celková užitná plocha cca 84 m², z toho balkon 1,25 m², sklep 7,05 m, plocha bytu 76 m².
Rekonstrukce v letech 2001–2009: nová koupelna, WC, kuchyň, elektroinstalace, EURo okna, rozvody vody. Vytápění vlastní + teplá voda el. nebo plyn.
Dům z roku 1928, architekt Eduarda Göttlicher. Reprezentativní příklad brněnské meziválečné architektury. Cihla 90, 60, 45 cm, sedlová tašková střecha, 16 bytů. 2007–2022 probíhá rozsáhlá rekonstrukce: nová střecha, okna, vchodové dveře, komíny, rozvody vody, plynu, stupačky, hromosvody, lávky, hydranty, zateplení stropů, úpravy společných prostor a sklepů. SVJ je bez dluhů. Parkování před domem. Lidi fajn. SVJ fajn.
Skvělá dostupnost do centra za 5 minut, vlaková zastávka Brno‑Horní Heršpice je vzdálena cca 200 m. MHD: tramvají č. 2 a 5 od Ústředního hřbitova, Bohunická autobus č. 50. Rychlý nájezd autem na dálnice D1, D2 a D52. V dosahu do 5-10 minut je veškerá občanská vybavenost.
V pěší dostupnosti od ZŠ a MŠ Bednářova, sportovišť, koupaliště, cyklostezky, lezeckého centra Adama Ondry a známých lokalit jako AZ Tower nebo M‑Palác, McDonalds, Hornbach, velké pracovní zóny: ABB, Notino, Brno Business Park, H‑Park, DEK a další.
Ulice Výpravní nabízí rovnováhu mezi klidem a výbornou dostupností. K dispozici je kompletní občanská infrastruktura v docházkové vzdálenosti, Doprava vlak, tramvaj, autobus, dálnice. Volnočasové možnosti a blízkost k pracovním centrům. Od lokality nečekejte tradiční městský, sídlištní ruch projíždějících aut a komplikace s parkováním. Až na občasné projíždění vlaků je tu atmosféra jako na vesnici. Čas od času se některá ze zahrádek v okolí uvolní a pak můžete i zahradničit. Měsíční náklady FO+ EL 2os. cca 6600, -Kč. CENA DOHODA JISTÁ, Jsem majitel, ale mám RK zastoupení.

Parametry

Povaha inzerátu
prodej bytu
Dispozice bytu
2+1
Druh vlastnictví
osobní
Materiál stavby
cihla
Možnost parkování
venkovní parkoviště
Energetická třída (štítek)
E
Vybavenost bytu
částečně zařízeno
Stav bytu
dobrý
Podlaží, v němž je byt
2.
Podlahová plocha bytu (m²)
76
Rok kolaudace
1928

balkón, terasa, lodžie nebo předzahrádka
sklep nebo podobný vlastní prostor

Základní údaje

Oblast inzerce
Brno-jih
Druh inzerátu
soukromá inzerce
Číslo inzerátu
7934068299543372363
7 600 000 Kč
Prodávající

PRODEJ BYTU 2+1 76 m² ul.VÝPRAVNÍ, BRNO

Zavřít Zavřít
Prodávající
Pavel B
Pošlete uživateli zprávu
0 / 1000

Nahlásit inzerát

Zavřít Zavřít
0 / 2000
Děkujeme za zpětnou vazbu! Inzerát byl nahlášen!